Apartament cu 2 camere Târgoviște în complexul Sideco Residence Park

89.000 €
Comision 0%
2 CAMERE
2 BAI
50 m²
apartament vanzare sideco Targoviste
Click pe poza pentru marire si deschidere galerie foto si Video

Descriere apartament cu 2 camere Târgoviște situat în complexul Sideco Residence Park

  • COMISION 0 PENTRU CUMPARATOR !!!
  • SIDECO RESIDENCE PARK !!!
  • SINGURUL COMPLEX REZIDENTIAL DIN TARGOVISTE CU PISCINA !!!
  • DISCOUNT DE LA 5000 EURO PANA LA 8000 EURO !!!

Daca iti doresti sa locuiesti intr-un apartament ce se afla intr-un complex rezidential, noi avem solutia ideala pentru tine! Acest complex rezidential este unicul din municipiul Targoviste ce dispune de piscina privata, spatii verzi cu loc de joaca pentru copii, parcari supraterane si subterane. Complexul rezidential, dispune de 60 parcari interioare dotate cu spatiu de depozitare si 60 parcari exterioare.

Pentru că te vei regăsi, cu siguranță, în stilul de viață pe care îl promovăm și pentru care am creat cel mai potrivit complex rezidențial, te invităm sa il descoperi, toate au fost gândite și proiectate special pentru a ati oferi stilul de viață la care aspiri. Apartamentele noastre vin sa ofere solutia corecta pentru investitia ta. Cu o compartimentare eficienta si un design deosebit, apartamentele noastre reprezinta produsul cheie pentru viitorul tau.

SIDECO RESIDECE PARK este realizat cu imensă responsabilitate deoarece îmbinarea armonioasă între materiale moderne va oferă confort, fiabilitate și siguranță! Imobilul dispune de configuratie D+P+2 E+M, va beneficia de o zidarie exterioara si interioara tip YTONG, iar apartamentele vor avea modelul de compartimentare decomandat si vor beneficia de finisaje de inalta calitate, printre acestea enumaram:
  • Structura in cadre de beton armat cu grinzi si stalpi din beton armat pe fundatii izolate din beton armat.
  • Zidarie din BCA 25 cm ( la peretii exteriori ) si 15 cm ( la pereti de compartimentare in apartamente ), 25 cm intre apartamente.
  • Tencuieli decorative la exterior.
  • Termoizolatii cu polistiren expandat de 10 cm EPS 80 la fatada.
  • Termoizolatii cu vata minerala de 30 cm la mansarda.
  • Termoizolatii cu polistiren extrudat intrados planseu demisol.
  • Vopsea lavabila ioni de argint la interior.
  • Balustrade metalice la exterior.
  • Pardoseli din granit pe casa scarii si gresie portelanata si parchet laminat la interior.
  • Invelitoare de 6 mm din tigla metalica mata cu sistem de scurgere al apelor pluviale si parazapezi.
  • Incalzire in pardoseala cu izolatie fonica si termica intre etaje.
  • Tamplarie din PVC cu 5 camere si geam tripan.
  • Tamplarie interioara din usi celulare MDF.
  • Usa metalica la intrare izolata fonica.
  • Baile vor fi placate cu gresie si faianta, vor avea: rezervor WC incastrat in perete si cadita de dus si hidroizolatie.
  • Lift de ultima generatie.

Precizam faptul ca acest complex rezidential va beneficia de supraveghere video, dispune de locuri de parcare supraterane si subterane (ce au incluse si spatii de depozitare) cu mentiunea ca aceastea se se vor achita separat de pretul de tranzactie al apartamentului. Unicitatea proiectului, dată de locaţia excelentă, preţurile corecte, calitatea remarcabilă şi garanţia constructiei sunt aspecte ce îl recomandă SIDECO RESIDENCE PARK ca investiţie cu succes garantat pentru orice cumpărător.

Caracteristici:
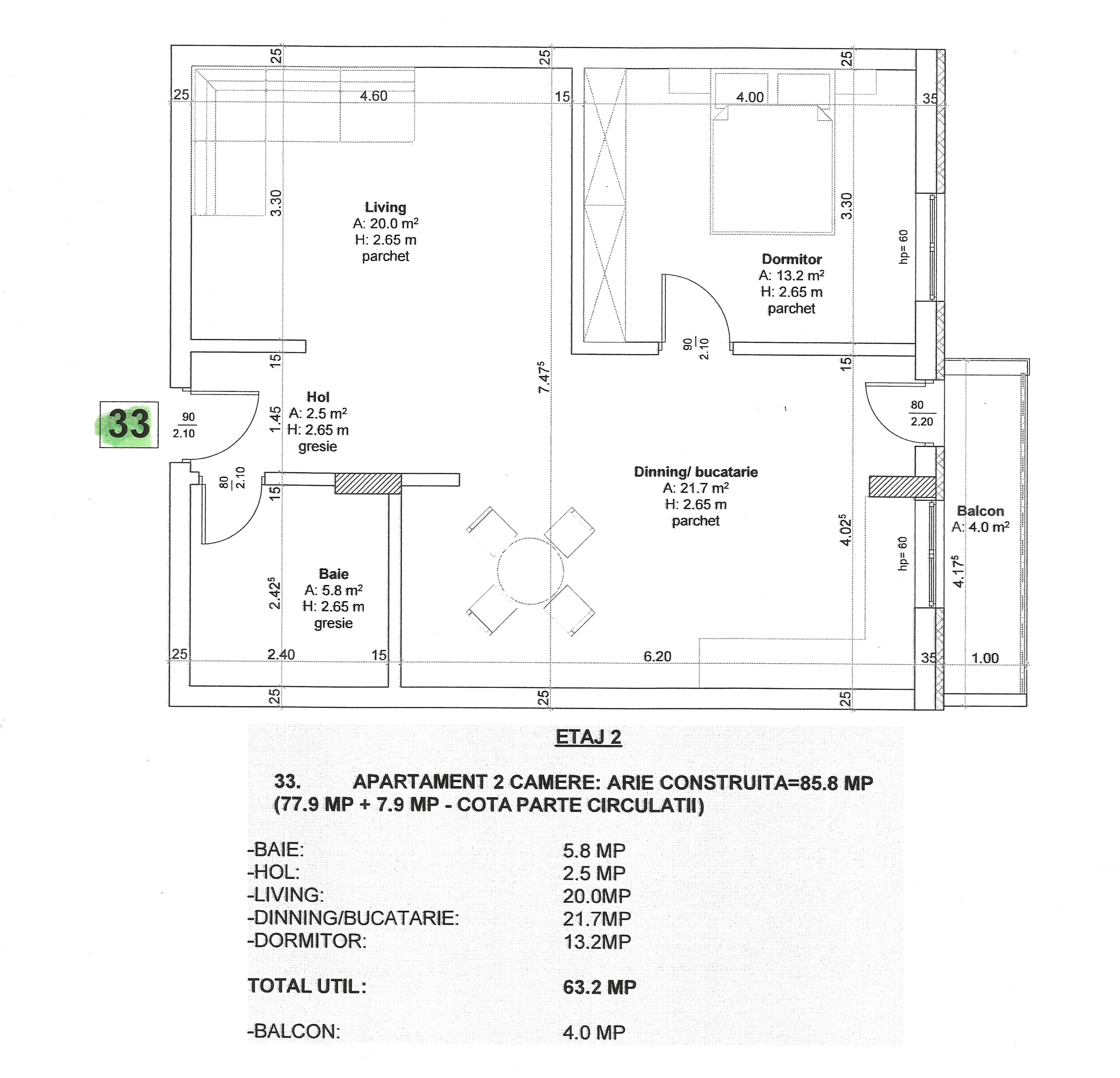
  • Suprafata utila: 50 mp
  • Confort: 1
  • Decomandat
  • Etaj: 2/3
  • Numar Bai: 1
  • Numar Balcoane: 1
  • Numar Camere: 2
  • An Constructie: 2023

Caracteristici Generale:
  • Incalzire: Centrala Imobil, Incalzire pardoseala
  • Interfon: Da
  • Lift: Da
  • Utilitati: Curent, Apa, Canalizare
  • Servicii: Administrare
  • Garaj parter - nu este inclus in pret
  • Parcare exterioara - nu este inclusa in pret
* Apartamentul se vine cu minim 1 loc de parcare int. sau ext.
** Pret parcare interioara ce detine si spatii de depozitare: 12 000 euro.
** Pret parcare exterioara: 5 000 euro.
HARTA - SIDECO RESIDENCE PARK
Exploreza locatia pe Google Street View